来源 :第一地产2022-04-11
去年11月,陆家嘴公告称:公司持股30%股的参股子公司上海东袤置业有限公司以人民币150.49亿元取得上海市浦东新区北滨江地块的国有建设用地使用权。


近日,该地块终于迎最新进展!
项目户型图效果图
重磅发布!
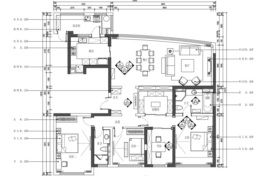
户型图曝光
(*仅供参考,以最终以开发商发布为准)

效果图曝光
(*仅供参考,以最终以开发商发布为准)





项目规划图及项目具体指标如下:


地块规模
该地块至少包含了5宗陆家嘴北滨江的核心地块,总面积23.15万㎡。其中,包含约13.36万㎡住宅、约9.2万㎡办公、约13.4万㎡商业、约2.8万㎡文化设施。
地块范围
该地块位于黄浦江核心段(新华-民生-洋泾),紧邻陆家嘴金融城。地块范围东至E13-6地块,南至昌邑路、滨江路,西至E08-1、E08-3地块,北至滨江大道、黄浦江E14-5地块。
住宅体量
位于民生路西侧的3幅地块,包含约13.36万平方米的住宅体量,预计大概约607套。这可能是未来陆家嘴区域,最后的一线滨江住宅了。

1
距离黄浦江仅一条马路的距离!
此前我们对该项目地块进行过一次实探,地段可以说很绝,妥妥的一线滨江景观!项目距离黄浦江真的只有一条马路的距离!(更多详情戳:《摇不到九庐?这里!还有最后600+套陆家嘴“一线滨江”席位!》)



地块周边实景图
我们在此前的实探中,也进入了地块现场一探究竟。

含住宅部分的三块地,现在还是四面高墙。

商办部分的2块地与杨浦大桥滨江绿地是相邻的,目前尚未开发。
2
无论是自驾还是轨交,出行十分便捷
再来感受一下该地块周边的交通情况如何:

杨浦东外滩方向:杨浦大桥、江浦路隧道、
陆家嘴方向:14号线(在建中)
虹口北外滩方向:大连路隧道、新建路隧道
浦东花木方向:18号线(在建中)
两岸码头:民生码头、其昌栈码头
对于工作在陆家嘴、北外滩、东外滩、花木的城市家庭,通勤挺方便的。
3
周边豪宅云集,附近新盘入市均价13.5万/㎡
最后来说说,大家最关心的房价。沿着项目附近的昌邑路沿线散步,可以看到周边云集了很多豪宅,包括九庐、陆家嘴壹号院、中企滨江悦府等等。
值得注意的是,距离项目不远的九庐三期,此前入市均价为13.5万/㎡。由此可以预见,此项目未来的入市均价也一定不低。
而九庐三期此前入围分数高达98.4分,这足以说明广大购房者对于该区域内新盘的关注度有多高。
待该地块项目建成后入市,必定会受到众多购房者的青睐!
最后,为大家附上项目周边房源的均价/租金,供参考:
九庐
昌邑路豪宅明星九庐
三期均价13.5万/㎡